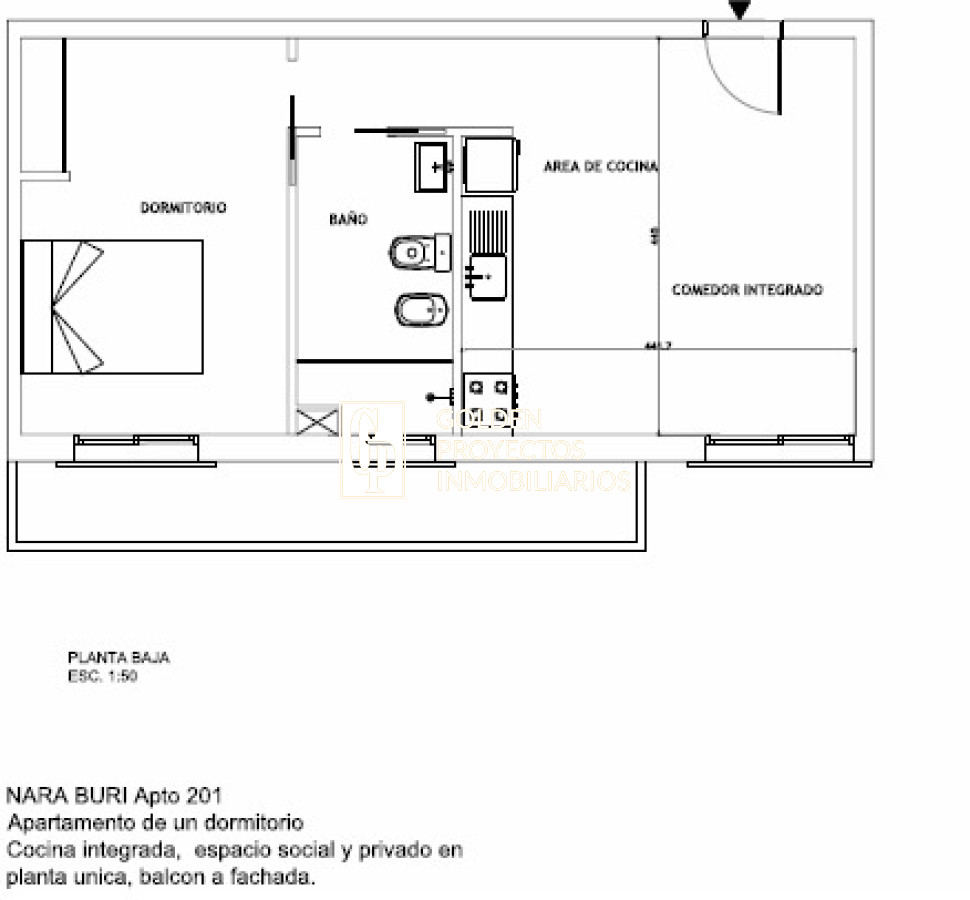
Venta apartamento 1 dormitorio, Aguada, estrenar

Aguada, Montevideo

Descripción

Inspirado en el Wabi-Sabi que encuentra la belleza en la imperfección y lo que el tiempo ha derruido, Nara Buri
es el producto de la recuperación y rehabilitación de una vivienda de cualidades fascinante.
En este caso nos encontramos con una estructura que permite adaptar 12 viviendas en su totalidad, de uno y dos dormitorios.
El edi􀄯cio se encuentra en un cruce interno de un barrio en crecimiento, con altas demandas tanto de renta como
de compra, con los servicios cubiertos y muy próximo a dos arterias principales de la ciudad. El punto es
sumamente equilibrado entre la paz de un barrio y la cercanía de varios corredores comerciales, ofrece la
accesibilidad al centro a escasos minutos, al igual que se puede acceder a centros educativos o zonas
administrativas de la ciudad, sin la necesidad de transitar largas distancias.
Las viviendas preexistentes presentan una doble altura lo que permite la transformación de estos espacios en
cómodos entrepisos duplicando el área habitable de cada lugar, esto nos lleva a una tipología de duplex
Conservando gran parte de la estructura pero con un aire totalmente renovado trabajamos los interiores con el
mayor respeto que merece buscando la riqueza espacial de cada ambiente, aprovechando cada rincón, dandole la
calidad que se necesita para tener un lugar único, agradable y que brinde esa paz que un hogar debe tener
Comercializa Golden Proyectos Inmobiliarios, Verónica Viera 097 315274

Caracteristicas

  • Mes de Entrega :8
  • Antiguedad :2026
  • Arquitecto :Gastón Acosta
  • Empresa Constructora :SEVEN
  • Parrillero :Barbacoa
  • Tipo de Edificio :En Pozo
  • A.N.V :Si

CONTACTO